长沙通大水泵厂、通大集团长沙水泵厂、湖南通大水泵

 

机械密封

102型机械密封

产品分类: 机械密封

产品名称:102型机械密封

流量范围:

扬程范围:

输送温度:

吸入压力:

密封形式:

密封材质:

13808468195

产品概述:

102型机械密封是一中内流内装、单端面、多弹簧非平衡型结构,符合ISO-3069、 JB1472-75标准。应用于各种离心泵、化工泵、管道泵及管道增压泵、排污泵、多级给水泵。

本系列机械密封中○型圈分丁腈橡胶、氟橡胶两种,请用户在选用时注意。

如果使用介质的腐蚀性较强,则应改○型圈为聚四氟乙烯V型圈。用户在订货时必须注意。

本系列为提高水泵产品的三化程序,谨向用户推荐优先选择使用。


适用范围:

◇ 密封 介质:水、油、弱酸、弱碱等一般腐蚀性介质

◇ 密封压力:≤1.0 MPa

◇ 密封腔温度:

丁腈橡胶:-20~180℃

氟橡胶:-20~180℃

聚四氟乙烯V型圈:-80~250℃

◇ 转速:轴径≤φ45 :       ≤3000 转/分

轴径 >φ45 :       ≤1450 转/分

机械密封

  机械密封是一种旋转机械的轴封装置。比如离心泵、离心机、反应釜和压缩机等设备。由于传动轴贯穿在设备内外,这样,轴与设备之间存在一个圆周间隙,设备中的介质通过该间隙向外泄漏,如果设备内压力低于大气压,则空气向设备内泄漏,因此必须有一个阻止泄漏的轴封装置。

  组成:

  主要部件

  动环、静环、冷却装置和压紧弹簧(视具体设备而定)。

  辅助密封件

  密封圈(有O形、X形、U型、楔形、矩形柔性石墨、PTFE包覆橡胶O圈等)。

  分类

  分为单端面、双端面;平衡型、非平衡型;任意旋向、固定旋向。

泵用机械密封:

  组成:主要有以下四类部件。a.主要密封件:动环和静环。b.辅助密封件:密封圈。c.压紧件:弹簧、推环。d.传动件:弹箕座及键或固定螺钉

  1、对重要泵产品的机械密封,要增加保护措施,提高密封质量,减少密封质量事故。

  2、在泵产品的设计过程中要充分考虑到泵其它零部件以及现场其它设备对机械密封的使用效果的影响,为机械密封创造一个良好的外部条件。

  3、增加对机械密封辅助系统的重要作用的认识,尽可能配备完善的机械密封辅助系统,以提高密封效果。 泵用机械密封属于精密、结构较为复杂的机械基础元件之一,是泵类机械的关键部件。其密封性能和使用寿命取决于许多因素,如选型、机器的精度、正确的安装使用等。


型号参数:

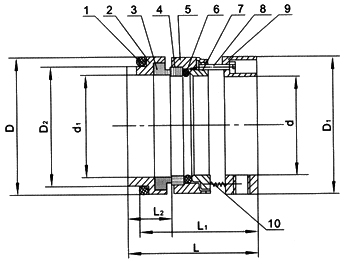
102型机械密封(图1)

1、静环型圈 2、静环座 3、静环 4、动环 5、动环座 6、动环型圈
7、传动座 8、连接螺钉 9、弹簧座 10、弹簧

型号dd1DD1D2LL1L2
102-252526.5404034453819
102-282829.5434337453819
102-303031.5454539453819
102-353536.5505044504320
102-404041.5585652554820
102-454546.5636256575020
102-505051.5706962605322
102-555556.5757467605322
102-606061.5807972605322
102-656566.5858477625723
102-707071.5929183625723
102-757576.5979688656325
102-808081.510510495656325
102-858586.5110109100656325


群发询价:

机械密封件的清扫与检查

  1.动静环表面是否存在划痕、裂纹等缺陷,这些缺陷存在会造成机械密封严重漏泄。有条件的可以用专用工具检查密封面是否平整,密封面不平整,压力水会进入组装后机械密封的动静环密封面,将动静环分开,机械密封失效。必要时可以制作工装在组装前水压试验。

  2.检查动静环座是否存在影响密封的缺陷。如动静环座与动静环密封胶圈配合表面是否存在伤痕等缺陷。

  3.检查机械密封补偿弹簧是否损坏及变形,倔强系数是否变化。

  4.检查密封轴套是否存在毛刺、沟痕等缺陷。

  5.清扫检查所有密封胶圈是否存在裂纹、气孔等缺陷,测量胶圈直径是否在工差范围内。

  6.具有水泵送机构的机械密封还要检查螺旋泵的螺旋线是否存在裂纹、断线等缺陷。

  机械密封件的安装与使用要求

  1、机械密封对机器精度的要求(以泵用机械密封为例)

  (1)安装机械密封部位的轴(或轴套)的径向跳动公差不超过0.04~0.06MM.

  (2)转子轴向窜动不超过0.3MM.机械密封件。png

  (3)密封腔体与密封端盖结合的定位端面对轴(或轴套)表面的跳动公差不超过0.04~0.06MM.

  2、密封件的确认

  (1)确认所安装的密封是否与要求的型号一致。

  (2)安装前要仔细地与总装图对照,零件数量是否齐全。

  (3)采用并圈弹簧传动的机械密封,其弹簧有左、右旋之分,须按转轴的旋向来选择。

  1)当输送介质温度偏高、过低、或含有杂质颗粒、易燃、易爆、有毒时,必须采取相应的阻封、冲洗、冷却、过滤等措施。

  (2)运转前用手盘车,注意转矩是否过大,有无擦碰及不正常的声音。

  (3)注意旋向,联轴器是否对中,轴承部位的润滑油加法是否适当,配管是否正确。

  (4)运转前首先将介质、冷却水阀门打开,检查密封腔内的气体是否全排出,防止静压引起泄漏,然后开机运行。

  (5)开车后工作是否正常稳定,有无因轴转动引起的异常转矩,以及异常响声和过热现象



推荐品牌:

102型机械密封(图1)

立即询价:

安装和使用技术方法:

  1、安装机械密封接触表面应涂上一层清洁油,以便顺利;

  2、密封装置的密封件在安装时应保持清洁,密封件应进行清洗并保持密封表面,以防止杂质和灰尘进入密封件;

  3、安装过程是禁止打和打,以避免损坏造成的机械密封密封故障;

  4、设备轴的强度要跳动应小于或等于0.04毫米的轴向动量不允许超过0.1毫米;

  5、安装静环密封时,拧紧螺钉必须均匀应力,以保证静环端面和垂直轴为;

  6、安装后用手推环,可以使动环在轴上和一定的灵活性上移动;

  7、安装手轮驱动轴后,轴应无光;

  8、设备必须填充介质,防止干摩擦和密封失效;9、无堵塞排污泵一接警后使用,颗粒介质,介质温度大于80时,应采取相应的冲洗,过滤,各种辅助设备的冷却措施,请参阅脱硫泵机械密封相关标准。

  产品特点

  由于水泵多为输送流体介质,具有水平安装、高转速、高压力、带固体颗粒、腐蚀性强等特点,所以泵用机械密封主体材质往往需要抵御固体颗粒的冲刷撞击、高转速带来的密封面高温磨蚀、高压力带来的密封参数不稳定、基体结构件被腐蚀等不利因素的影响,对机械密封密封材质要求较高,通常密封面摩擦副可选材质有镍基硬质合金、钴基硬质合金、无压烧结碳化硅、反应烧结碳化硅、浸金属石墨、聚四氟乙烯填充石墨、聚四氟乙烯填充玻璃纤维、三氧化二铝特殊陶瓷等等;基体材质可选为2Cr13不锈铁、301不锈钢、304不锈钢、316不锈钢、316L不锈钢、904L不锈钢、聚四氟乙烯等等;弹簧补偿件可选材质为哈氏合金、1Cr18Ni9Ti、3Cr13等等;

  不同于釜用机械密封,泵用机械密封的密封介质多为液体、固液混合物和常压气体等;而釜用机械密封多用于密封高压气体或气液混合物,泄露对环境和生物会造成严重威胁。

  泵用机械密封属于精密、结构较为复杂的机械基础元件之一,是泵类机械的关键部件。其密封性能和使用寿命取决于许多因素,如选型、机器的精度、正确的安装使用等。泵用机械密封种类繁多。型号各异,其维修也是很难辩别和判断。




上一篇: JE502机械密封
下一篇: 101 型机械密封

全国免费咨询热线: 13808468195